Villa indipendente su quattro lati

In vendita
Pieve a Nievole - via Provinciale Empolese, 27
187.500 €
Appartamento
Categoria
235,5
m2
5
Locali
3
Camere
2
Bagni
1
Box
Descrizione
*** ASTA IMMOBILIARE ***

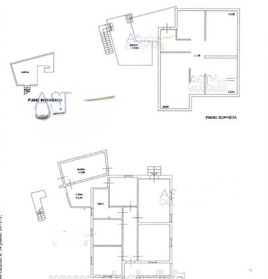
Nel comune di Pieve a Nievole, via Provinciale Empolese 27, si trova in vendita IN ASTA una villa disposta su due piani fuori terra, oltre a piano interrato, composto al suo interno al piano terra da ingresso, disimpegno, cucina, soggiorno, tre camere, bagno e cantina con piccoli bagno, al piano primo, raggiungibile da scala esterna ed ampia terrazze, locali ad uso soffitta, al piano seminterrato da locali ad uso cantina, oltre a locale autorimessa.

Data asta 29/01/2026, Offerta minima € 187.500,00.
Acquistare casa all’asta non è mai stato così facile!
Con CasaQui hai al tuo fianco professionisti che ti guidano passo dopo passo, aiutandoti a trovare l’immobile giusto e a partecipare all’asta in totale sicurezza.
Approfitta di occasioni uniche e risparmia sull’acquisto della tua nuova casa.
Caratteristiche principali
Codice:
351/2022 1 PT
Città:
Pieve a Nievole
Categoria:
Appartamento
Locali:
5
Camere:
3
Bagni:
2
Mq:
235,5
Box:
1
Mq Box:
17,29
Mq Giardino:
945
Balconi:
1
Mq Balcone:
12,28
Terrazzi:
1
mq Terrazzo:
47,29
Classe energetica:
Non dichiarata
Stato Immobile:
Buono
Grado:
Medio
Giardino:
Privato
Tipo Soggiorno:
Soggiorno
Tipo Cucina:
Abitabile
Riscaldamento:
Autonomo
Tipo Riscaldam.:
Caldaia
Tipo Impianto:
Radiatori
Fonte Energetica:
Metano
Acqua Calda:
Autonoma
Raffrescamento:
Split
Infissi:
Legno
Serramenti:
Buono
Persiana:
Personalizzato
Pavim. Giorno:
Graniglia
Pavim. Notte:
Ceramica
Pavim. Cucina:
Ceramica
Pavim. Bagno:
Ceramica
Accessori
Camino
Ripostiglio
Veranda
Mappa
Planimetrie
Cookie preference