Terratetto con giardino a Poggio a Caiano

In vendita
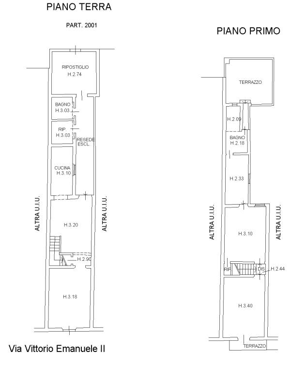
Poggio a Caiano - via Vittorio Emanuele II, 64
129.750 €
Villetta schiera
Categoria
146,3
m2
5
Locali
2
Camere
2
Bagni
Descrizione
*** ASTA IMMOBILIARE ***

Nel Comune di Poggio a Caiano, via Vittorio Emanuele II nr. 64, si trova in vendita in ASTA terratetto indipendente disposto su due livelli con annessa area esterna.
L'immobile risulta essere composto da: piano terra da ingresso su soggiorno, sala da pranzo con cucina, cortile a cui si accede a due ripostigli oltre bagno; al primo da due camere, vano pluriuso, bagno, ripostiglio, disimpegno oltre terrazzo, nonché pertinenziale resede nella parte tergale adibito a giardino.

Data asta 06/05/2026, offerta minima € 129.750,00.
Acquistare casa all’asta non è mai stato così facile!
Con CasaQui hai al tuo fianco professionisti che ti guidano passo dopo passo, aiutandoti a trovare l’immobile giusto e a partecipare all’asta in totale sicurezza.
Approfitta di occasioni uniche e risparmia sull’acquisto della tua nuova casa.
Caratteristiche principali
Codice:
2538/2021 59016 PO
Città:
Poggio a Caiano
Categoria:
Villetta schiera
Locali:
5
Camere:
2
Bagni:
2
Mq:
146,3
Mq Giardino:
30
Terrazzi:
2
mq Terrazzo:
21,96
Classe energetica:
Non dichiarata
Stato Immobile:
Buono
Grado:
Medio
Lati Liberi:
2
Giardino:
Privato
Tipo Soggiorno:
Sala da Pranzo
Tipo Cucina:
Abitabile
Riscaldamento:
Autonomo
Tipo Riscaldam.:
Caldaia
Tipo Impianto:
Radiatori
Fonte Energetica:
Metano
Acqua Calda:
Autonoma
Infissi:
Legno
Serramenti:
Buono
Persiana:
Persiana Legno
Pavim. Giorno:
Ceramica
Pavim. Notte:
Ceramica
Pavim. Cucina:
Ceramica
Pavim. Bagno:
Ceramica
Accessori
Lavanderia
Ripostiglio
Mappa
Planimetrie
Cookie preference