Terratetto con resede esclusivo a Pescia

In vendita
Pescia - via di Campo, 80
113.000 €
Casa singola
Categoria
234,95
m2
6
Locali
4
Camere
3
Bagni
Descrizione
*** ASTA IMMOBILIARE ***

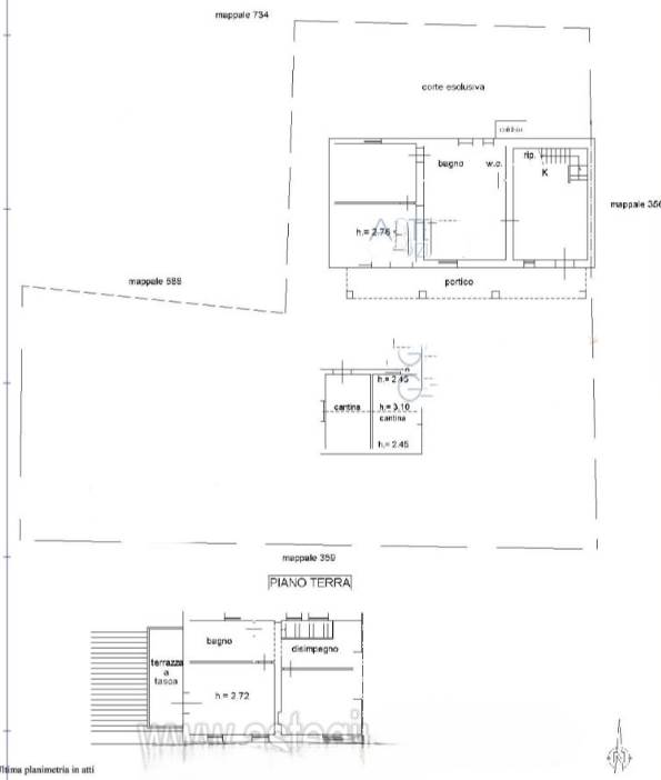
Nel comune di Pescia, Località Torricchio, via di Campo 80, si trova in vendita IN ASTA un fabbricato civile, su due piani fuori terra, diviso in due appartamenti, circondato da resede in parte recintata.
Il primo appartamento è composto al suo interno al piano terra, sala con angolo cottura, ripostiglio, disimpegno, bagno, camera, vano scale, disimpegno, bagno allo stato grezzo, due camere, terrazza e soffitta al piano sottotetto, il secondo composto al piano terra da soggiorno con angolo cottura, camera, bagno e rimessa.

Data asta 23/06/2026 , Offerta minima € 113.000,00.
Acquistare casa all’asta non è mai stato così facile!
Con CasaQui hai al tuo fianco professionisti che ti guidano passo dopo passo, aiutandoti a trovare l’immobile giusto e a partecipare all’asta in totale sicurezza.
Approfitta di occasioni uniche e risparmia sull’acquisto della tua nuova casa.
Caratteristiche principali
Codice:
23/2025 U PT
Città:
Pescia
Categoria:
Casa singola
Locali:
6
Camere:
4
Bagni:
3
Mq:
234,95
Mq Giardino:
624
Terrazzi:
1
mq Terrazzo:
14,15
Anno ristrutturazione:
2000
Classe energetica:
Non dichiarata
Stato Immobile:
Buono
Grado:
Medio
Giardino:
Privato
Tipo Soggiorno:
Soggiorno
Tipo Cucina:
Abitabile
Riscaldamento:
Autonomo
Tipo Riscaldam.:
Caldaia
Tipo Impianto:
Radiatori
Fonte Energetica:
Metano
Acqua Calda:
Autonoma
Infissi:
Legno
Serramenti:
Buono
Persiana:
Persiana Metallo
Pavim. Giorno:
Gres Porcellanato
Pavim. Notte:
Gres Porcellanato
Pavim. Cucina:
Gres Porcellanato
Pavim. Bagno:
Gres Porcellanato
Accessori
Camino
Lavanderia
Porta Blindata
Ripostiglio
Mappa
Planimetrie
Cookie preference