Terratetto con giardino

In vendita
Quarrata - Via Roma, 57
55.875 €
4 o più locali
Categoria
274
m2
4
Camere
3
Bagni
Descrizione
*** ASTA IMMOBILIARE ***

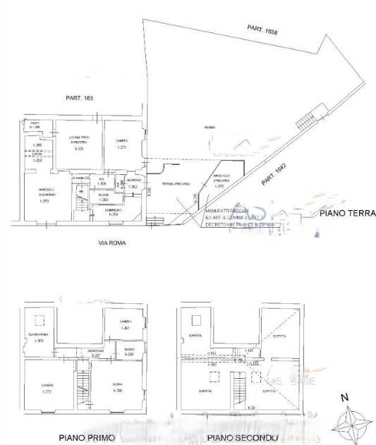
Nella zona centrale del Comune di Quarrata (PT), Via Roma n.57, si trova in vendita in ASTA un terratetto ad uso civile abitazione elevato su due piani fuori terra (piano terra e primo) oltre piano sotttotetto e diviso in tre porzioni indipendente come di seguito descritte:
- una prima porzione situata a piano terra e composta da ingresso-soggiorno, cucina, un ripostiglio sottoscala, una camera, un bagno e un disimpegno;
- una seconda porzione consistente in un locale al piano terra adibito a camera da letto e dotato di servizio igienico:
- una terza porzione che si sviluppa sui due piani dell'edificio oltre il piano sottotetto, composta al piano terra da ingresso, ripostiglio, disimpegno, al piano primo da una cucina, due camere, un locale guardaroba, un bagno e un disimpegno mentre al piano secondo da soffitta.
Fa parte della consistenza immobiliare anche un resede esclusivo.

Data asta 08/01/2026, offerta minima € 55.875,00.
Acquistare casa all’asta non è mai stato così facile!
Con CasaQui hai al tuo fianco professionisti che ti guidano passo dopo passo, aiutandoti a trovare l’immobile giusto e a partecipare all’asta in totale sicurezza.
Approfitta di occasioni uniche e risparmia sull’acquisto della tua nuova casa.
Caratteristiche principali
Codice:
212/2012 U PT
Città:
Quarrata
Categoria:
4 o più locali
Locali:
7
Camere:
4
Bagni:
3
Mq:
274
Mq Giardino:
278
Classe energetica:
Non dichiarata
Stato Immobile:
Da Ristrutturare
Grado:
Medio
Posizione:
Centro
Lati Liberi:
2
Giardino:
Privato
Tipo Soggiorno:
Soggiorno
Tipo Cucina:
Abitabile
Riscaldamento:
Autonomo
Tipo Riscaldam.:
Caldaia
Tipo Impianto:
Radiatori
Fonte Energetica:
Metano
Acqua Calda:
Autonoma
Infissi:
Legno
Serramenti:
Buono
Persiana:
Persiana Legno
Pavim. Giorno:
Ceramica
Pavim. Notte:
Ceramica
Pavim. Cucina:
Ceramica
Pavim. Bagno:
Ceramica
Accessori
Camino
Ripostiglio
Mappa
Planimetrie
Cookie preference