Porzio di casa con giardino a Agliana

In vendita
Agliana - Via Berlicche, 32
97.500 €
Porzione Villa
Categoria
157,9
m2
5
Locali
3
Camere
2
Bagni
1
Box
Descrizione
*** ASTA IMMOBILIARE ***
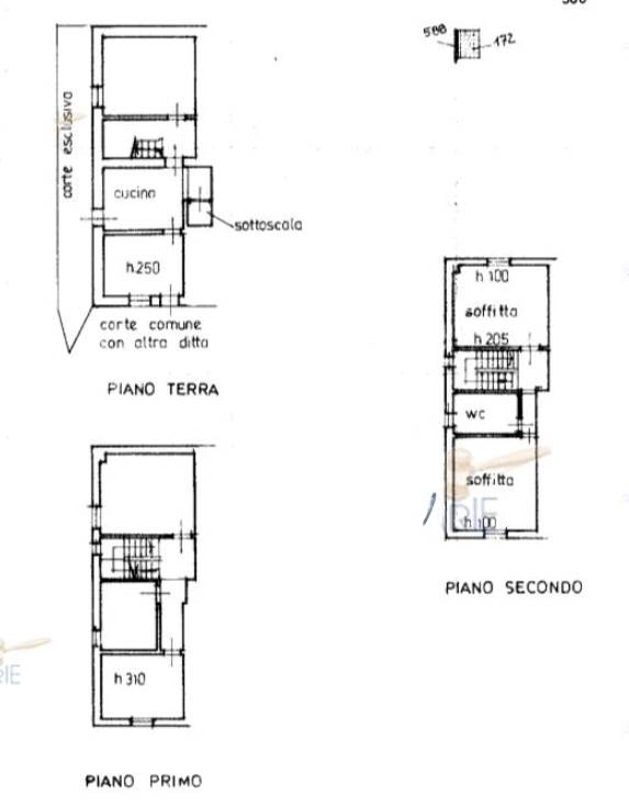
Nel comune di Agliana, Via Berlicche, 32, si trova in vendita IN ASTA un terratetto ad uso civile abitazione, elevato su due piani fuori terra, oltre piano sottotetto, libero su tre lati e composto internamente al piano terra da ingresso, soggiorno, cucina, disimpegno, ripostiglio, al piano primo da tre camere e disimpegno, al piano secondo sottotetto da due soffitte, bagno e disimpegno.
Completano la proprietà una corte esclusiva sul lato sud e un'autorimessa con bagno.

Data asta 14/07/2026, Offerta minima €97.500,00..
Acquistare casa all’asta non è mai stato così facile!
Con CasaQui hai al tuo fianco professionisti che ti guidano passo dopo passo, aiutandoti a trovare l’immobile giusto e a partecipare all’asta in totale sicurezza.
Approfitta di occasioni uniche e risparmia sull’acquisto della tua nuova casa.
Caratteristiche principali
Codice:
124/2025 U PT
Città:
Agliana
Categoria:
Porzione Villa
Locali:
5
Camere:
3
Bagni:
2
Mq:
157,9
Box:
1
Mq Box:
36
Mq Giardino:
34
Classe energetica:
Non dichiarata
Stato Immobile:
Buono
Grado:
Medio
Lati Liberi:
3
Giardino:
Privato
Tipo Soggiorno:
Soggiorno
Tipo Cucina:
Abitabile
Riscaldamento:
Autonomo
Tipo Riscaldam.:
Caldaia
Tipo Impianto:
Radiatori
Fonte Energetica:
Metano
Acqua Calda:
Autonoma
Infissi:
Legno
Serramenti:
Buono
Persiana:
Persiana Metallo
Pavim. Giorno:
Gres Porcellanato
Pavim. Notte:
Gres Porcellanato
Pavim. Cucina:
Gres Porcellanato
Pavim. Bagno:
Gres Porcellanato
Accessori
Camino
Ripostiglio
Mappa
Planimetrie
Cookie preference